Projekt “Krok po kroku zbuduj swój dom i ogród” jest już mocno zaawansowany, a zatem nasze działania idą dalej i zdecydowanie do przodu. Obecnie wciąż koncentrują się na procesie projektowym, którego finalnym efektem będzie pozwolenie na budowę. Natomiast w tzw. międzyczasie cała koncepcja inwestycji mocno się zmieniła, z 1 planowanego domu zrobiły się 4, a zatem projekt się znacznie rozbudował. I właśnie temu wątkowi, w oparciu o który powstał plan zagospodarowania terenu, poświęcony jest obecny, czwarty post tego cyklu.
Zanim jednak przejdziemy dalej, krótkie przypomnienie gdzie jestem na swojej drodze do domu i ogrodu. A jestem, jak wspomniałem w poprzednim poście tego cyklu, po wyborze projektu budynku, który docelowo będziemy realizować (obecnie razy 4), po pierwszym spotkaniu z architektem, który ten projekt będzie adaptował do moich potrzeb oraz warunków terenowych, a także po czynnościach geodety, który opracował tzw. mapę do celów projektowych.

Efektem finalnym tego wszystkiego będzie pozwolenie na budowę, natomiast po drodze jeszcze szereg formalności, o których wspomnę w tym i kolejnych postach tego cyklu.
A zatem to tyle tytułem wstępu i przypomnienia, gdzie jestem na swojej drodze w projekcie „Krok po kroku zbuduj swój dom i ogród”.
.
Plan zagospodarowania terenu od projektantów
Jak wspomniałem w drugim poście tego cyklu, każda inwestycja budowlana, w tym moja również, musi rozpocząć się działaniami projektowymi, których efektem będzie zielone światło do budowy. Czyli tak jak u mnie – pozwolenie na budowę.
Aby je uzyskać, trzeba skorzystać z usług projektanta – architekta, który zbierze w całość wszelkie dokumenty formalne, a także zestawi to z naszymi oczekiwaniami i wyobrażeniami o przyszłej inwestycji. To już wiesz.
Po drodze był potrzebny m.in. bardzo ważny, pośredni element tzw. mapa do celów projektowych, którą dla mnie wykonał jeden z Partnerów tego projektu – geodeta Mariusz Kaliszewski.

Temu wątkowi był poświęcony 3 post tego cyklu.
.
To właśnie ta mapa posłuży architektowi do zaadaptowania (wpasowania) na niej projektu budynku. Dokładnie rzecz ujmując, do zlokalizowania go na działce na mapie, w oparciu o wytyczne jakie wynikają z posiadanej przeze mnie decyzji o warunkach zabudowy (omawianej we wcześniejszych postach), a także określone w tym zakresie, inne przepisy. Ponadto, na tej samej mapie, architekt – projektant zaprojektuje mi przyłącza: wodociągowe, kanalizacji sanitarnej i energetyczne. Gazowego nie, jako że w mojej miejscowości gazu nie ma.
I to tyle teorii, trochę jako przypomnienie.
.
Natomiast nasze obecne działania, które doprowadziły mnie do tego etapu, to kilka ważnych kroków, które działy się w tzw. tle.
Pierwszym z nich było to, że architekci, w oparciu o nasze pierwsze spotkanie opisane w poście 2, zrobili pierwszą koncepcję i umiejscowili budynek na działce (mapie). Dodatkowo, również w oparciu o nasze ustalenia, zrobili wstępną propozycję zagospodarowania terenu, czyli można powiedzieć taki fundament pod przyszły projekt ogrodu.

Bez nadmiernego wdawania się w szczegóły, wspomnę tylko o najważniejszych elementach, które się tam znalazły:
- Budynek
- Taras
- Altana
- Podest na palenisko
- Wiata
No i ciągi komunikacyjne pomiędzy tym.
.
Krokiem kolejnym było nasze spotkanie, w którym uczestniczyłem ja oraz architekci z Pracowni Grębski Architekt: Tomasz, którego znasz już z wcześniejszych postów

oraz Rafał, który jest bezpośrednim autorem tych technicznych rysunków.

.
Efektem tego niezwykle ważnego w całym procesie projektowym spotkania były ustalenia, które w moim przypadku zupełnie zmieniły całą dotychczasową koncepcję.




Tzn. z 1 działki jaką posiadałem, zdecydowałem, że dokupię kolejną, sąsiednią i na nich postawimy 4 identyczne domki, po 2 na każdej z działek.
.
Natomiast dodam, że w toku „normalnego” procesu projektowego, tak daleko idące zmiany nie zachodzą i takie robocze spotkanie pomiędzy inwestorem i projektantem polega na omówieniu opracowanej pierwszej koncepcji, wprowadzeniu drobnych korekt, i w oparciu o to przygotowanie kolejnej, z reguły już ostatecznej koncepcji projektowej.
.
W moim przypadku poszło to znacznie szerzej, co jednak poza zwiększeniem zakresu, absolutnie nie zmienia założeń i przesłania tego cyklu, w którym relacjonuję projektowanie i budowę drewnianego domu wraz z ogrodem.
Efektem spotkania było przygotowanie przez architekta Krzysztofa kolejnej, drugiej koncepcji zagospodarowania terenu, gdzie znalazły się już 4 projektowane domy i bliźniaczo urządzony teren.

To podlegało kolejnej naszej konsultacji, tym razem już online, i w oparciu o kolejne ustalenia, tym razem dotyczące tylko zagospodarowania terenu i pewnych roszad w planowanych elementach, powstał finalny projekt zagospodarowania terenu.

.
I właśnie w tym miejscu nadszedł czas aby oficjalnie zdradzić powody tak dużej zmiany względem tej pierwotnej koncepcji. Otóż zdecydowałem, że powstanie moja mała osada, czyli OSADA Z OGRODEM NA TY. Kompleks 4 domków z własnymi strefami SPA na wynajem, do których będę miał przyjemność zapraszać gości, w tym również moich Czytelników i Sympatyków tego bloga.
Cały teren jak planowałem od początku, będzie pięknie zagospodarowanym, naturalistycznym ogrodem, a domki, chociaż identyczne technicznie, będą różniły się wystrojem i aranżacją wnętrz. Stąd powstanie:
- domek różany,
- damek lawendowy,
- domek sosnowy,
- domek słonecznikowy.

.
No dobrze, ale wracając do tematu i procesu projektowego.
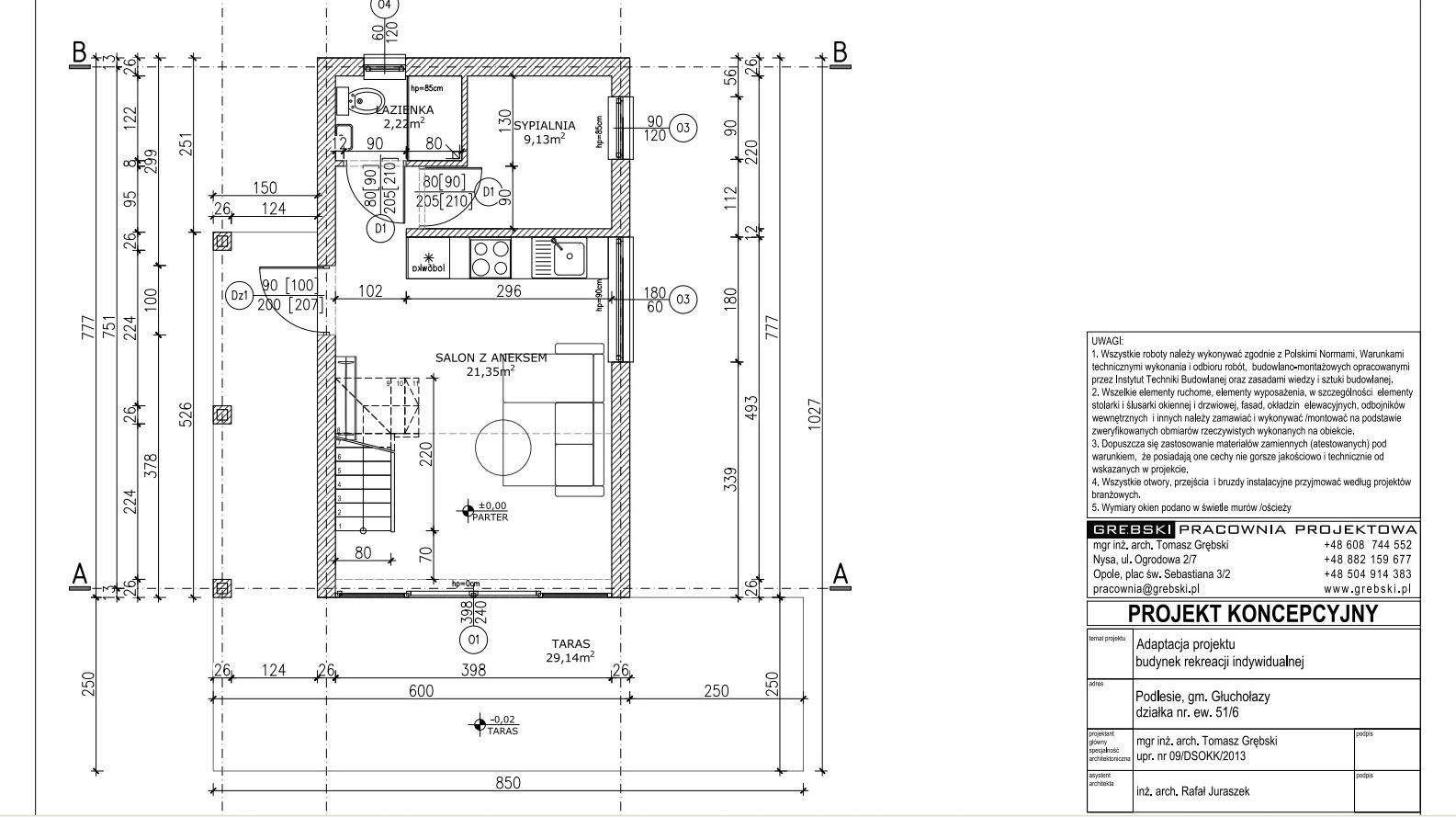
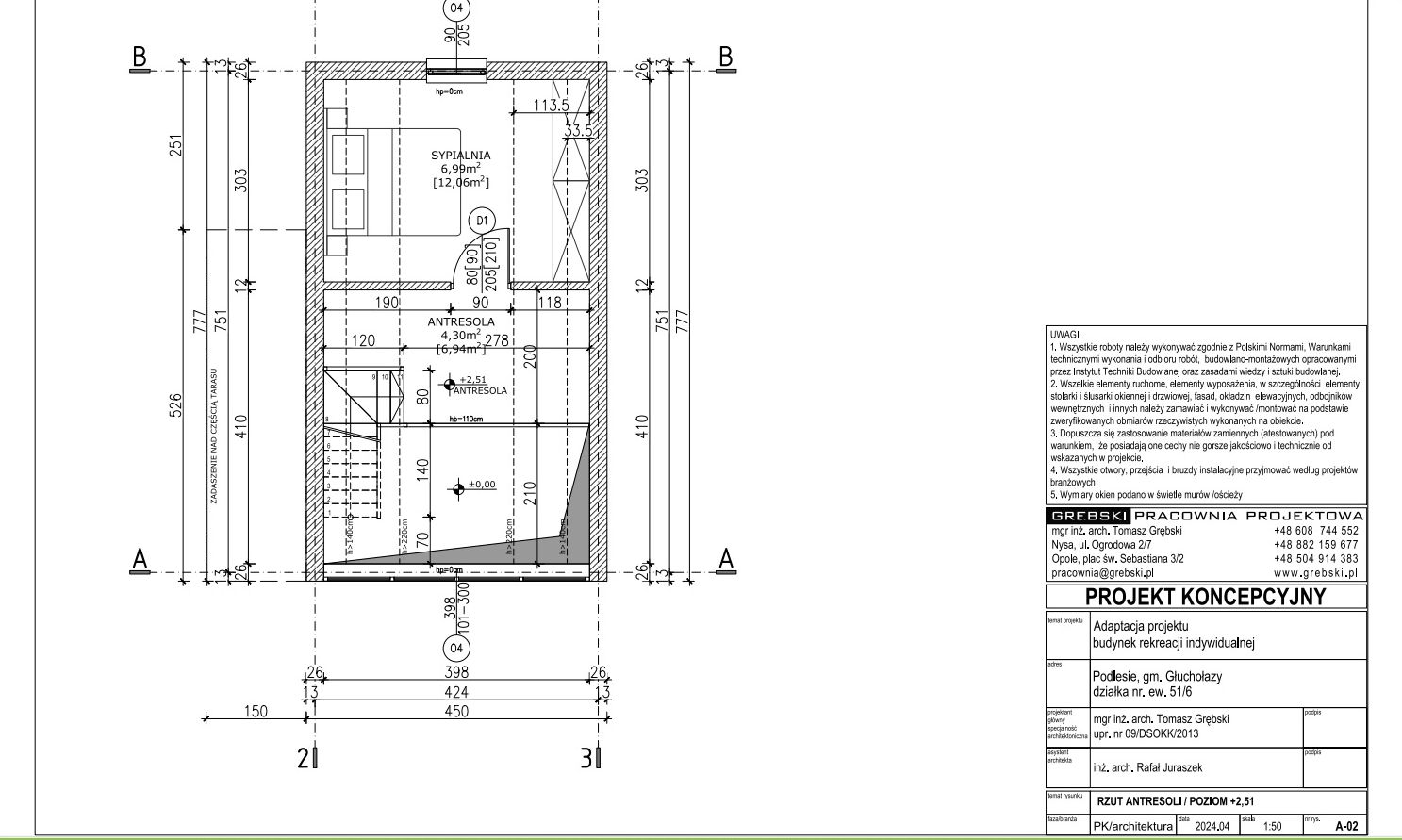
Mamy ostatecznie zatwierdzoną koncepcję zagospodarowania terenu, a także, co równie ważne, wybrane i dostosowane do warunków zabudowy oraz moich preferencji projekty domków. Jakie to projekty opisywałem w pierwszym poście tego cyklu, tymczasem tylko wspomnę, że równolegle z pracą nad koncepcją terenu, architekci Tomek i Rafał, pracowali także nad pewnymi modyfikacjami w projekcie samego budynku.
Powstała więc finalna wersja (identyczna dla 4 planowanych budynków), która jest dopasowana do warunków terenu, jego wystawy, kierunków świata i moich oczekiwań. Spójrz na ogólne rzuty, a więcej o nich już na etapie budowy, w kolejnych postach tego cyklu.


.
I co dalej?
No dobrze… Niebawem uzyskam pozwolenie na budowę, do którego architekci załatwiają jeszcze szereg formalności. W kolejnych postach tego cyklu przedstawię bliżej całą dokumentację projektową, co się na nią składa i co jest potrzebne, aby to pozwolenie na budowę uzyskać. Czyli co tak naprawdę zrobi projektant, do jakich instytucji się zwróci i jakie dokumenty powstaną.
Tymczasem moje działania idą dalej i plan zagospodarowania jaki powstał, oprócz tego, że posłuży do uzyskania pozwolenia na budowę, powędruje także do projektantów ogrodu, którzy na tej podstawie szczegółowo go opracują. Co oczywiście również Ci przedstawię w kolejnych postach tego cyklu.
.
A kończąc ten post przypomnę, że do współpracy przy tym projekcie udało mi się zaprosić grupę uznanych marek,

dzięki czemu dom i ogród będą kompletne, a ja będę miał możliwość pokazać Ci wszystko, na co w tym procesie zwrócić uwagę. A markami tymi są i wspierają mnie w następujących obszarach:
-
Adaptacja projektu budynku i wszelkie formalności administracyjne związane z uzyskaniem pozwolenia na budowę oraz prowadzeniem inwestycji: Grębski Architekt
-
Projekt i kompleksowa realizacja budynku (wraz z dostawą materiałów): W.G.Partners
-
Projekt ogrodu w zakresie ogólnej koncepcji, rozplanowania stref, funkcjonalności, części roślinnej, wodnej, oświetleniowej. Ponadto kompleksowa realizacja: Quercus Mikołajczyk
-
Kompleksowa obsługa geodezyjno – prawna inwestycji: Kaliszewski pracownia geodezyjna
-
Projekt ogrodu w zakresie nawierzchni, systemów murowych, obrzeży, stopni, tarasów. Ponadto dostawa materiałów: Bruk – Bet
-
Materiał ozdobny do aranżacji ogrodu w zakresie kamienia ozdobnego, w tym materiał do wykładania rabat, budowy zbiorników, głazy, szpilki kamienne: Gnejsy.pl
-
Sprzęt do realizacji ciężkich prac przy budowie ogrodu: Avant
-
Sprzęt do realizacji lżejszych prac ziemnych przy uprawie podłoża i zakładaniu trawników: Grillo
-
Materiał do kompleksowego wykonania tarasów drewnianych: Komplex Market
-
Nowoczesne, bezdymne paleniska ogrodowe: Firefly
-
Urządzenia do przydomowej strefy spa: Centerspa
-
Materiał w zakresie nawodnienia, sterowania, automatyki, robotów koszących: Gardena
.
Do zobaczenia w 5 części projektu “Krok po kroku zbuduj swój dom i ogród“.
- Pomysły na oświetlenie ścieżek w ogrodzie - 27 października 2025
- Jesienne prace w ogrodzie ozdobnym – konieczne przed zimą - 26 października 2025
- Lampy betonowe do ogrodu – hit czy przejściowa moda? - 25 października 2025
