Witam Cię na specjalnej podstronie dużego, blogowego projektu “Krok po kroku zbuduj swój ogród”. To właśnie z niej trafisz bezpośrednio do wszystkich postów tego kilkunasto – miesięcznego cyklu, które znajdziesz w poniższym zestawieniu. Zwróć uwagę, że posty sukcesywnie będą przybywały, w miarę postępu prac, w okresie od czerwca 2021 roku, do grudnia 2022 roku.
Zapraszam:
- Krok po kroku zbuduj swój ogród – część 1 – rozpoczęcie projektu
- Krok po kroku zbuduj swój ogród – część 2 – inspiracje przed projektem ogrodu
- Krok po kroku zbuduj swój ogród – część 3 – wstępna koncepcja projektu ogrodu
- Krok po kroku zbuduj swój ogród – część 4 – przyłącz wodociągowy i kanalizacji sanitarnej
- Krok po kroku zbuduj swój ogród – część 5 – wstępne przygotowanie i profilowanie terenu oraz zbiornik na wodę deszczową
- Krok po kroku zbuduj swój ogród – część 6 – projekt architektoniczny
- Krok po kroku zbuduj swój ogród – część 7 – kanalizacja deszczowa
- Krok po kroku zbuduj swój ogród – część 8 – przygotowanie podbudowy pod podjazd
- Krok po kroku zbuduj swój ogród – cześć 9 – zabudowa obrzeży i palisad
- Krok po kroku zbuduj swój ogród – część 10 – układanie płyt brukowych i tarasowych
- Krok po kroku zbuduj swój ogród – część 11 – rozpoczęcie budowy ogrodzeń
- Krok po kroku zbuduj swój ogród – część 12 – projekt nawodnienia ogrodu
- Krok po kroku zbuduj swój ogród – część 13 – pozimowe wznowienie i budowa kolejnej architektury
- Krok po kroku zbuduj swój ogród – część 14 – betonowe schody wiszące
- Krok po kroku zbuduj swój ogród – część 15 – dobra ziemia niestety zarosła przed dalszymi pracami
- Krok po kroku zbuduj swój ogród – część 16 – wykonanie nawodnienia – etap 1
- Krok po kroku zbuduj swój ogród – część 17 – wykonanie ogrodowego zbiornika wodnego
- Krok po kroku zbuduj swój ogród – część 18 – układanie głazów gnejsowych
- Krok po kroku zbuduj swój ogród – część 19 – wykonanie drewnianego tarasu
- Krok po kroku zbuduj swój ogród – część 20 – betonowy warzywnik
- Krok po kroku zbuduj swój ogród – część 21 – kaskada wodna
- Krok po kroku zbuduj swój ogród – część 22 – ogrodzenie frontowe oraz mur kuchni letniej
- Krok po kroku zbuduj swój ogród – część 23 – podłoża, nasadzenia roślin i wykładanie rabat agrowłókniną
- Krok po kroku zbuduj swój ogród – część 24 – wykonanie nawodnienia – etap 2 – linie kroplujące i wyłożenie rabat materiałem ozdobnym
- Krok po kroku zbuduj swój ogród – część 25 – trawnik z rolki i podlewanie trawnika
- Krok po kroku zbuduj swój ogród – część 26 – elementy ozdobne – donice, paleniska i parasol ogrodowy
- Krok po kroku zbuduj swój ogród – część 27 – instalacja robotów koszących i Gardena Smart System – automatyki w ogrodzie
- Krok po kroku zbuduj swój ogród – część 28 – wielkie sprzątanie po zakończeniu budowy ogrodu
- Krok po kroku zbuduj swój ogród – część 29 – olejowanie drewnianego tarasu
.
Natomiast uzupełniając powyższe posty dodam, że ogród został już zakończony. Zostało zrobione wszystko jeśli chodzi o architekturę oraz zagospodarowanie i nasadzenia.

Spójrz jak to wygląda – odwiedź galerię zdjęć.
.
A wracając do relacji budowy ogrodu… Dodam, że jeśli wolisz oglądać jak czytać, mimo że nie jest to przedstawione tak dokładnie jak w powyższych postach, polecam Ci skróty filmowe:
ODCINEK 1 – wstępne równanie terenu i montaż zbiornika na wody deszczowe
.
ODCINEK 2 – przygotowanie podbudowy pod podjazd i projekt zagospodarowania terenu
.
ODCINEK 3 – rozpoczęcie prac brukarskich i budowa podjazdu
.
ODCINEK 4 – kontynuacja prac brukarskich, budowa schodów wiszących i rozmowa o automatyce do zbiorników wodnych
.
ODCINEK 5 – kontynuacja prac brukarskich, budowa ściany z kaskadą wodną, rozpoczęcie budowy zbiornika wodnego oraz muru kuchni letniej
.
ODCINEK 6 – prawie docelowe równanie i profilowanie terenu
.
ODCINEK 7 – budowa zbiornika wodnego i osadzenie głazów gnejsowych
.
ODCINEK 8 – budowa drewnianego tarasu
.
ODCINEK 9 – nasadzenia roślinne
.
ODCINEK 10 – budowa systemu nawadniania. Odcinek zrealizowany przez dostawcę systemu – markę Gardena. Prace nad systemem realizowane były w kilku etapach, w miarę postępu budowy samego ogrodu.
…
.
Natomiast poniżej znajdziesz szczegółowy opis projektu i jego najważniejsze założenia, które przyświecają mi w momencie jego rozpoczęcia. Spójrz o co tak naprawdę chodzi…
Projekt “Krok po kroku zbuduj swój ogród” to kolejny, duży projekt na blogu, który potrwa od czerwca 2021 roku, aż do grudnia roku 2022. W tym czasie, ze specjalnego cyklu postów dowiesz się, jak krok po kroku przejść proces wykonania ogrodu, od projektu, aż po jego kompleksowe urządzenie.
Ze swojego doświadczenia wiem, że to wiedza mocno poszukiwana. Świadczy o tym popularność tego typu treści na moim blogu, ilość zapytań jakie otrzymuję, czy chociażby zainteresowanie moim podręcznikiem, w którym m.in. te zagadnienia omawiam.
Natomiast ten cykl będzie miał jedną, podstawową zaletę, która zdecydowanie wyróżni go na tle innych opracowań, poruszających podobne zagadnienia. Otóż będzie opracowany nie czysto teoretycznie, ale na konkretnym przykładzie, podczas rzeczywistej budowy domu, na prawdziwej działce i przy prawdziwym urządzeniu ogrodu. A to moim zdaniem sprawa fundamentalna, która w sposób bezpośredni wskaże, kiedy, co i na jakim etapie wykonać.
Zanim przejdę dalej, jeszcze jedna, bardzo ważna uwaga: cykl opracowany będzie na przykładzie konkretnej budowy nowego domu, który realizuję, a zatem mogą się z nim utożsamiać wszyscy, którzy podobny proces planują czy również realizują. Dlatego, że to właśnie na etapie budowy budynku trzeba już rozmyślać nad ogrodem, jak gospodarować masami ziemi, jakie urządzenia czy przewody poprowadzić, czy jakie inne czynności wykonać, aby ułatwić sobie dalsze działania, a tym samym zaoszczędzić czas, pieniądze i mnóstwo kłopotów. Nie oznacza to jednak, że z opracowania nie będą mogli skorzystać również ci, którzy są już po budowie, a nawet ci, którzy jakiś już ogród posiadają, ale rozważają nad jego zmianą. Otóż owszem, to opracowanie również i im jest dedykowane.
Nie będzie to również opracowanie pokazujące jak wykonać ogród systemem tzw. gospodarczym, tylko i wyłącznie własną pracą i pomyłem. Owszem ogrody w ten sposób zrealizowane bardzo szanuję i wielokrotnie odwiedzam, chociażby w ramach projektu “Busem przez polskie ogrody”. Jednak ten cykl ma na celu co innego, konkretnie pokazanie tego, jak poprawnie ogród zaprojektować, jak go wykonać, z czyjej pomocy skorzystać i na jakim etapie, gdzie szukać wsparcia, jakich materiałów użyć, co będzie potrzebne, jak wszystko ze sobą połączyć i w jakiej kolejności.
Uważam, że absolutnie nie ma niczego złego w tym, że w procesie projektowania czy budowy ogrodu korzystamy z wiedzy profesjonalistów i zdajemy się na ich doświadczenie. Nie zgadzam się również ze stwierdzeniem, które często słyszę, że tylko ogrody wykonane własną pracą, są “prawdziwe” i godne uwagi. Otóż ogrody wykonane przez specjalistów, ale z naszym świadomym udziałem, według naszych życzeń i potrzeb, są równie ciekawe i atrakcyjne. Szczególnie w dzisiejszych realiach, kiedy tak naprawdę często nie mamy czasu na to, aby samemu te rzeczy realizować. To tak samo jak z tym, że sami nie projektujemy i nie budujemy domów, nie naprawiamy samochodów, nie szyjemy ubrań, nie robimy mebli, nie obcinamy włosów itd., itd. Myślę, że się z tym zgodzisz.
.
Partnerzy projektu “Krok po kroku zbuduj swój ogród”
Do projektu udało mi się zaprosić kilku Partnerów, którzy śmiało mogę powiedzieć, są liderami i autorytetami w swoich zakresach. I to właśnie z ich pomocą i na ich przykładzie pokażę Ci jak, co i kiedy wykonać, na co zwrócić uwagę, z jakim materiałów i usług skorzystać, aby proces budowy ogrodu maksymalnie uprościć, a jednocześnie poprowadzić go tak, aby powstał kompletny, piękny i funkcjonalny teren.
Partnerzy są tak dobrani, aby zakresem swoich materiałów i usług umożliwić realizację ogrodu. Innymi słowy są to Marki z takich obszarów, które z pewnością będą Cię dotyczyły, jeśli myślisz o kompleksowym, rzetelnym i poprawnym wykonaniu ogrodu.
W ślad za tym, w chronologii budowy ogrodu, będą to obszary działania:
Projekt ogrodu w zakresie nawierzchni, ogrodzeń, systemów murowych, obrzeży, stopni, tarasów: Marka Bruk – Bet
Projekt ogrodu w zakresie ogólnej koncepcji, rozplanowania stref, funkcjonalności, części roślinnej, wodnej, oświetleniowej: Marka Quercus Mikołajczyk
Projekt w zakresie rozplanowania nawodnienia, sterowania, automatyki, robotów koszących: Marka Gardena
Materiały do budowy nawierzchni, ogrodzeń, systemów murowych, obrzeży, stopni, tarasów: Marka Bruk – Bet
Kompleksowa budowa ogrodu w oparciu o ww. projekty, wiedzę i doświadczenie: Marka Quercus Mikołajczyk
Materiał ozdobny do aranżacji ogrodu w zakresie kamienia ozdobnego, w tym materiał do wykładania rabat, budowy zbiorników, głazy, szpilki kamienne: Marka Gnejsy.pl
Sprzęt do realizacji ciężkich prac przy budowie ogrodu: Marka Avant
Sprzęt do realizacji lżejszych prac ziemnych przy uprawie podłoża i zakładaniu trawników: Marka Grillo
Materiał w zakresie nawodnienia, sterowania, automatyki, robotów koszących: Marka Gardena
Materiał w zakresie urządzeń technicznych i akcesoriów do wodnych realizacji: Marka Oase
Materiał roślinny w zakresie bylin: Marka Barcikowscy
Materiał do dekoracji ogrodu i tarasów w zakresie donic: Marka Modne Donice
Nowoczesne paleniska ogrodowe: Marka Unico
Nowoczesne parasole ogrodowe i markizy tarasowe: Marka Litex Garden
Materiał do kompleksowego wykonania tarasów drewnianych: Komplex Market
Materiał do założenia trawnika: Rolimpex
.
Reasumując, grono Partnerów wygląda następująco:
Ponadto, do kompleksowego wykonania ogrodu użytych zostanie jeszcze kilka innych grup produktów, m.in. materiał roślinny w zakresie drzew i krzewów ozdobnych, trawy z rolki, mebli ogrodowych, czy innych dodatków, o czym również będę wspominał w toku całego cyklu. A zatem być może wolne miejsce wśród Partnerów czeka właśnie na Twoją Markę?
.
Harmonogram projektu “Krok po kroku zbuduj swój ogród”
Realizacja projektu i budowy ogrodu, jak wspomniałem na wstępie, będzie realizowana na przestrzeni kilkunastu miesięcy, równocześnie z budową samego budynku mieszkalnego. Z całego procesu powstanie cykl postów, który wstępnie zakładam w następujących obszarach:
-
ETAP I – czerwiec – lipiec 2021 – porządkowanie terenu po ciężkich pracach budowlanych (murowanie i krycie budynku) oraz wstępne niwelowanie i profilowanie, w tym również z wykonanie przyłączy technicznych do budynku tj. wody, kanalizacji deszczowej i sanitarnej oraz prądu.
-
ETAP II – lipiec – sierpień 2021 – prace projektowe związane z wyborem koncepcji i stylu ogrodu, doborem materiałów i rozwiązań oraz kompleksowym wykonaniem projektu.
-
ETAP III – wrzesień – grudzień 2021 – prace budowlane, w tym budowa ogrodzenia, podjazdów, chodników, murów oporowych, tarasów, schodów, obrzeży rabat, w tym również wykonanie instalacji technicznych związanych z nawadnianiem i oświetleniem ogrodu.
-
ETAP IV – styczeń – marzec 2022 – ostateczne profilowanie i kształtowanie terenu.
-
ETAP V – marzec – maj 2022 – nasadzenia roślinne, wykładanie rabat, zakładanie trawników, montaż systemów sterowania nawadnianiem i oświetleniem, instalacja robotów koszących, aranżacja mebli i dekoracji.
-
ETAP VI – maj – grudzień 2022 – bieżące użytkowanie ogrodu wraz z informacją na temat użytych materiałów i ich funkcjonowania w praktyce.
Uwaga: ze względów technicznych i tok postępu prac przy samym budynku, terminy mogą minimalnie ulec zmianie, niemniej sam harmonogram i podział na poszczególne zakresy, z pewnością będzie zachowany.
Natomiast spójrz, jak harmonogram prac związanych z ogrodem, ma się do prac związanych z realizacją samego budynku:
.
O budowie i ogrodzie
Jak już również wspomniałem, to co zdecydowanie wyróżnia projekt “Krok po kroku zbuduj swój ogród” to fakt, że realizowany będzie na konkretnej działce, przy prawdziwej inwestycji. W mojej ocenie dodaje mu to realności, a przede wszystkim będzie umożliwiało pokazanie, że ogród powstaje naprawdę, a nie tylko w teorii, a do jego zaprojektowania i wykonania zastosowanie będą miały określone czynności, materiały i elementy.
Budynek, który powstaje, to średniej wielkości budynek, o powierzchni użytkowej około 170 metrów kwadratowych, realizowany w oparciu o zdecydowanie nowoczesny projekt pod nazwą “Dostępny 6“, który realizuję na działce o powierzchni 1130 metrów kwadratowych.
Ze zmian wpływających na przyszłe zagospodarowanie ogrodu, zrezygnowałem z garażu w bryle budynku, na rzecz wolnostojącego garażu w obrębie działki.
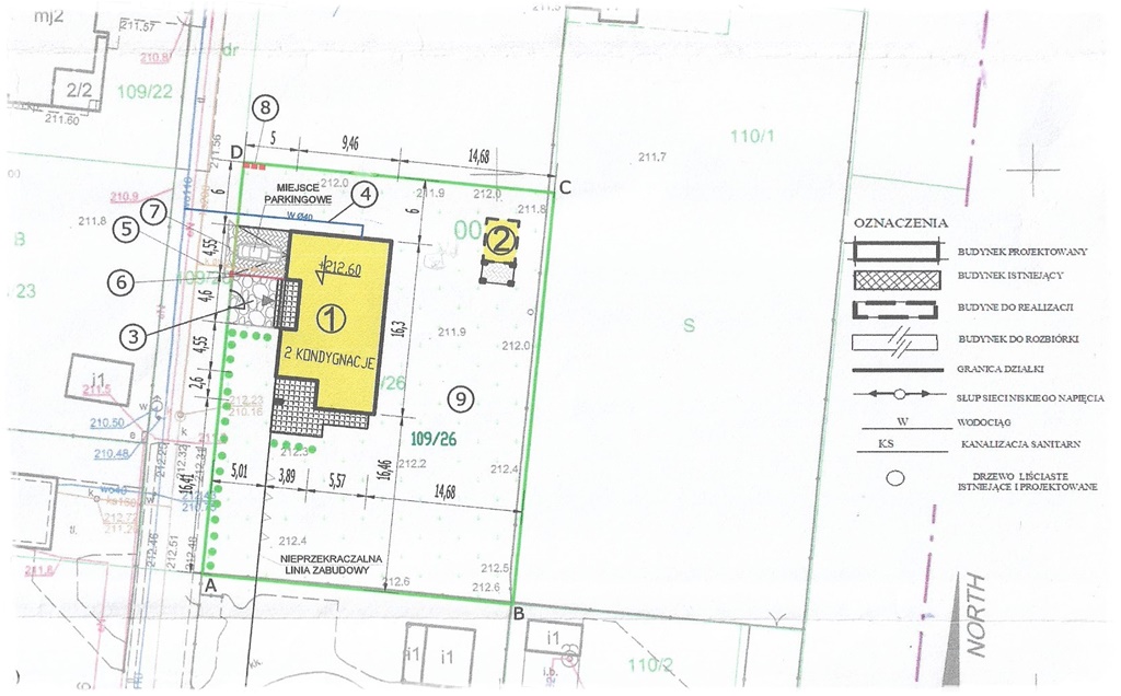
Plan zagospodarowania terenu, który jest załącznikiem do pozwolenia na budowę wygląda następująco:
Nie jest to absolutnie żaden projekt ogrodu, ale za to może posłużyć jako podkład pod wstępne koncepcje. Kolorem zielonym obrysowana jest działka, na której ogród będzie wykonany, widać również realizowany budynek (ten duży, w kolorze żółtym). Jak widzisz po południowej stronie budynku (na dole) wstępnie zakładany jest taras, strona zachodnia to strefa wejściowa, a wschodnia i właśnie południowa to obszar, w którym rozwijał będzie się przyszły ogród. Niemniej w toku całego projektu “krok po kroku zbuduj swój ogród” zagospodarowana będzie cała działka, łącznie z ogrodzeniem.
Ze względu na nowoczesną architekturę budynku, ogród również będzie w tonacji nowoczesnej, chociaż myślę wstępnie, że z akcentami ogrodów naturalistycznych, chociażby za sprawą traw ozdobnych, które bardzo lubię.
Działka zlokalizowana jest w mieście, na typowym osiedlu domów jednorodzinnych, również raczej w nowoczesnej tonacji, co także będzie miało odzwierciedlenie w projekcie i wyglądzie przyszłego ogrodu.
Budynek i teren inwestycji na dzień rozpoczęcia projektu wygląda następująco:
Jak widzisz obszar będzie wymagał gruntownego sprzątania, niebawem będą realizowane przyłącza do budynku oraz nastąpi wstępne rozplantowanie humusu i profilowanie terenu. A zatem zgodnie z powyższym harmonogramem, będzie to I ETAP prac.
.
Skąd pomysł na projekt “Krok po kroku zbuduj swój ogród”?
Pomysł projektu zrodził się w mojej głowie już jakiś czas temu, a właściwie to chodził za mną od czasu, kiedy zajmuje się ogrodami i prowadzę bloga. Zresztą podobne opracowania już robiłem, może trochę w innym zakresie i nie tak kompleksowo jak będzie to obecnie. Możesz to zobaczyć chociażby w tej zakładce.
W każdym razie po ilości zapytań jakie otrzymuję w tym zakresie i po popularności poszczególnych postów blogowych wiem, że to wiedza mocno poszukiwana, o którą wbrew pozorom trudno w internecie. Tym bardziej podanej w rzetelny i przystępny sposób oraz kompleksowo traktującej zagadnienie projektu i wykonania ogrodu.
Stąd jestem przekonany, że cykl postów tego projektu dobrze wypełni tą lukę, a jednocześnie będzie praktycznym poradnikiem, wskazującym na konkretnie elementy, czynności i materiały.
.
Co ma pokazać projekt “Krok po kroku zbuduj swój ogród”?
Projekt będzie miał misję edukacyjną, pokazującą krok po kroku wszystkie czynności i elementy, które trzeba uwzględnić przy planowaniu i budowie ogrodu. Co równie ważne, ma także uświadomić, że proces budowy ogrodu i zagospodarowania działki to proces rozbudowany, do którego trzeba podejść świadomie, ze znajomością własnych potrzeb i możliwości.
Dlatego, że wykonanie ogrodu to czynność nie mniej ważna od budowy samego domu, a poprawnie wykonana, może dać pełną satysfakcję z posiadania własnego kawałka przestrzeni. I odwrotnie. Popełnione błędy mogą ciągnąć się latami, nie wspominając o poczuciu niezadowolenia, czy zmarnowanym czasie i funduszach.
Stąd projekt będzie pewnego rodzaju przewodnikiem po tym niełatwym temacie. A z drugiej strony nie aż tak skomplikowanym, aby nie można było się z nim zmierzyć.
.
Co wyróżnia projekt “Krok po kroku zbuduj swój ogród”?
Projekt, jak już kilkukrotnie wspomniałem, nie będzie wydarzeniem teoretycznym, bujającym w obłokach i obrzucającym Cię teorią, którą nie wiadomo do czego możesz wykorzystać. Wręcz przeciwnie wskaże Ci drogę, którą masz podążać w kierunku własnego ogrodu. Drogę, którą przejdę również ja, realizując na Twoich oczach ten kilkunasto – miesięczny projekt mojego ogrodu.
Z jednej strony czuję zadowolenie, że coś takiego mogę relacjonować, a z drugiej mam świadomość powagi sytuacji i odpowiedzialności jaką na siebie biorę. W końcu to wydarzenie zobaczą setki tysięcy osób, a pewnie i miliony, za sprawą moich stron, Partnerów i patronatów prasowych, które projekt będzie posiadał.
A będą to patronaty zarówno popularnej prasy dostępnej w kioskach, jak i typowej prasy branżowej wydawanej przez Międzynarodowe Targi Poznańskie, czy nawet pewnie dobrze Ci znanych Targów Gardenia.
.
Zaproszenie do udziału
Zapraszam Cię do aktywnego śledzenia całego przedsięwzięcia. Jestem przekonany, że jeśli stoisz lub staniesz na drodze do własnego ogrodu, znajdziesz tu mnóstwo praktycznych i merytorycznych wskazówek i informacji.
Pamiętaj, że cykl ten nie będzie poradnikiem na przykład o wszystkich dostępnych stylach ogrodowych, kompendium wiedzy o roślinach ani na inny, szczegółowy temat. Ale za to, krok po kroku, przeprowadzi Cię przez proces projektu i wykonania ogrodu, wskazując wszystkie elementy, które powinieneś w swojej drodze uwzględnić.
W mojej ocenie to niezwykle ważna, potrzebna i wbrew pozorom niełatwa do zdobycia wiedza.






















